新闻动态
联系我们
咨询热线:0898-88889999
手机:13988889999时间:2025-09-18 05:29:29 点击量:
御翠园,一个隐藏于都市繁华之中的静谧绿洲,其售楼处热线如同一扇通往理想居所的神秘之门,静静等待着每一位追求高品质生活的探索者——
御翠园,一个占地广阔达43万平方米的独栋别墅社区,仿佛一颗璀璨的明珠镶嵌于内环之内。总建筑面积虽仅为16万平方米,却巧妙地规划出八期工程,共孕育了376户尊贵家庭,入住率高达85%,见证了无数幸福时光的绽放。这里,每一栋别墅都是对精致生活的完美诠释,E、F两种户型更是匠心独运,在私密的地下室空间内,巧妙融入了室内游泳池,让居者在家的每一个角落都能享受到五星级的奢华体验。
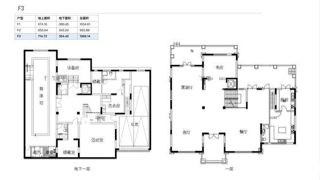
走进御翠园,仿佛踏入了一幅流动的画卷。E户型,共计30套,优雅地分布在三、四期之中,建筑面积在790至839平方米之间,采用5+1的创意设计,地上两层与地下一层巧妙结合,三期E户型以两个小组团的布局,营造出温馨而私密的邻里氛围;四期E户型则傲立于水岸之畔,坐拥一线水景,将自然之美尽收眼底。而F户型,仅14席,建筑面积在993至1069平方米之间,以其宏大的尺度和非凡的气度,成为了御翠园中的佼佼者,每一套都如同艺术品般令人赞叹。
御翠园的景观设计,更是将自然与人文完美融合。一期,以北美风格的柏油小路为引,简洁而不失雅致,仿佛漫步于异国他乡;三期,中心湖泊波光粼粼,四周景观错落有致,诗意盎然,让人沉醉不已;五期与六期,溪水潺潺,绿树成荫,营造出一片悠然自得的世外桃源;四期,则以繁茂的花草树木和宽敞的楼间距,勾勒出一幅幅绿意盎然的田园风光;七期与八期,人车分流的设计,让居住空间更加宁静与安全,砖石铺就的小径两旁,红花碧草相映成趣,湖水轻拂岸边,一派恬静休闲的田园美景,让人心旷神怡。楼栋分布,如同御翠园的生命脉络,记录着这里的每一次成长与蜕变。一期,自2000年始建,2002年面世,以独特的北美建筑风格,挑高6.8米的客厅设计,以及清新田园的装饰风格,吸引了众多追求品质生活的目光。二期,作为御翠园的商业核心,会所、商场、沿街商铺等一应俱全,为居民提供了便捷的生活服务。三期,作为早期开发的典范,自2005年对外销售以来,便以其卓越的品质和稀缺性,吸引了众多社会精英的青睐。四期,自2006年发售以来,几乎以月售罄的速度,见证了和记黄埔高端产品走进大众视野的辉煌时刻。五期、六期,延续了前期的热销势头,每一期都以独特的户型设计和精致的景观布局,赢得了市场的广泛赞誉。
七期,于2009年底悄然动工,2010年初便以崭新的面貌迎接每一位追求梦想的居者。这一期,和记黄埔引入了全新的设计理念和户型布局,虽然初期遭遇了一些市场的不适应,但凭借其卓越的品质和独特的魅力,最终在开盘仅三个月的时间内便全部售罄。七期的类独栋别墅,以地上三层地下一层的结构设计,搭配挑高6.8米的客厅和约150平方米的花园,让人车分流的设计更加人性化,双车位的配置更是满足了现代家庭的出行需求。
八期,作为御翠园的收官之作,于2010年动工,2011年初正式发售。虽然这一期在整体定位上略显亲民,但并未影响其对品质的坚持和追求。24户双拼别墅,每一套都凝聚了设计师的心血和智慧,将实用性与美观性完美结合。在调控政策的影响下,八期依然能够在半年内售罄,足见御翠园在市场上的影响力和号召力。御翠园售楼处,24小时VIP热线,始终恭候着每一位追求高品质生活的您。在这里,专业的销售团队将为您提供一对一的贴心服务,从楼盘简介到特价房源信息,从房价走势到交通规划,从项目配套到周边配套,从户型图到备案价,一切尽在掌握。预约看房,更可享受购房专属优惠,让您的置业之旅更加轻松愉快。御翠园,一个值得您托付梦想与未来的理想家园,期待与您共同书写属于您的美好生活篇章。
